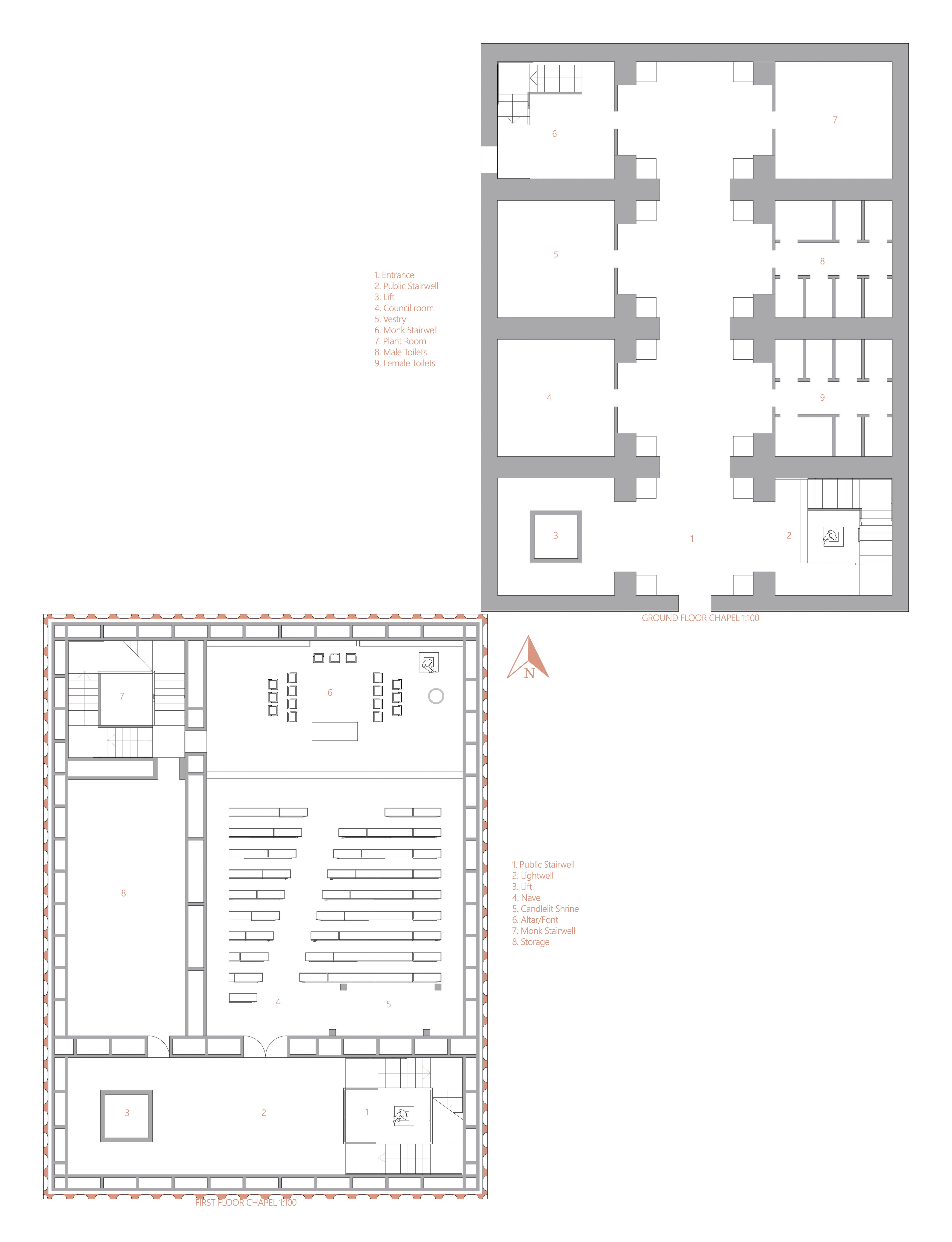
The project was developed over the last year through concept and the resultant scheme allowed for a richer approach to the chapel space through the sequence of fully public transitioning through the mixing space of the cloister.
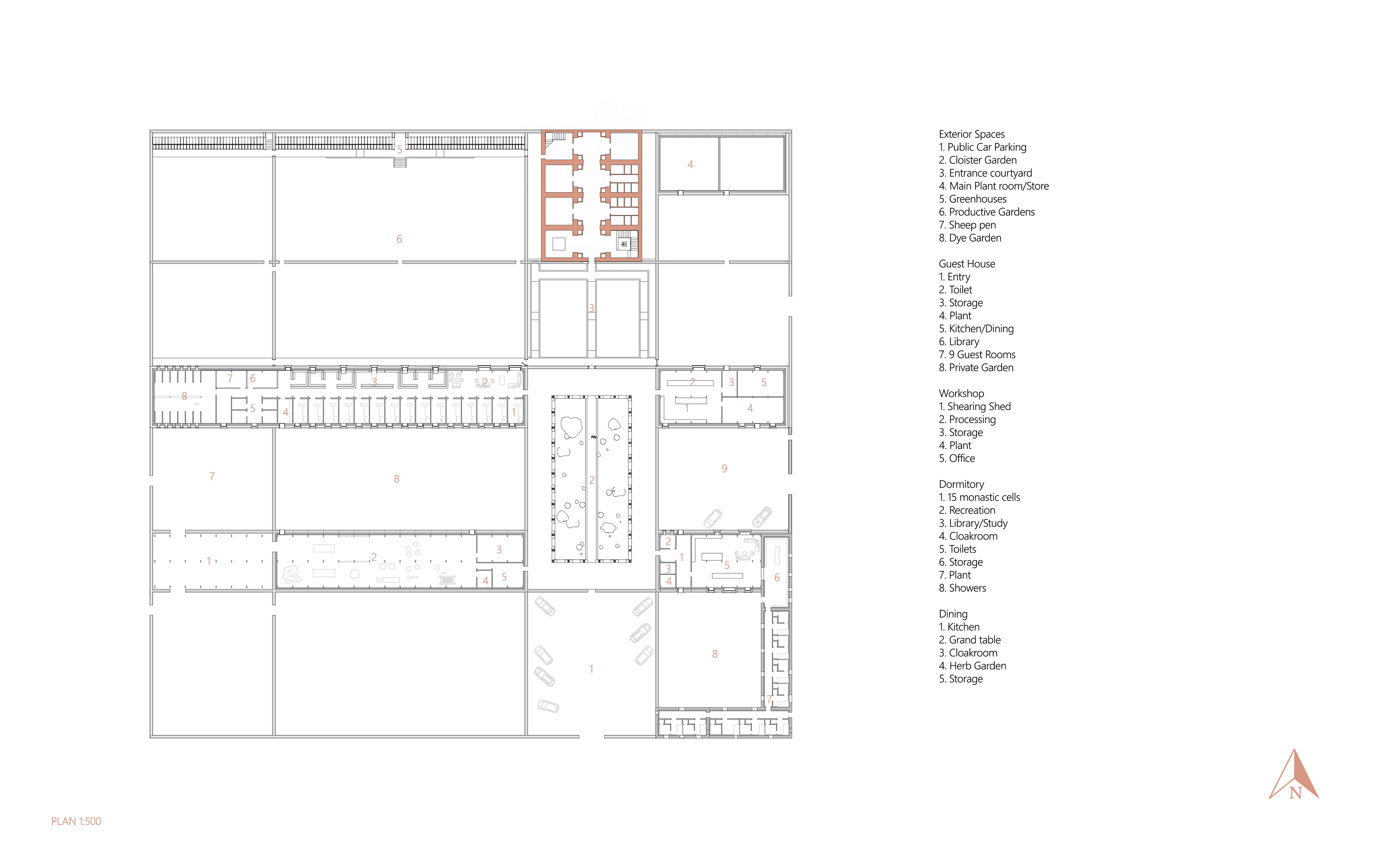
The buildings uncharacteristically large scale for the buildings make it a marker on any journey through the centre of mainland Orkney, cementing it as a point of pilgrimage and point of common worship for the islands residents.
The contrast between the living space and worship is deliberate to create a hierarchy in the scheme. The subdued forms of the gable mimicĀ the already present farmhouse. The chapel space forming an unbroken monolithic mass which riff off the vernacular broch.
Descending into the undercroft and ascension into the main chapel space is the final part of the journey onto the isletĀ and through the grounds.
Back to Top